2021
Skissförslag och bygglovshandlingar
Privatperson, Göteborg

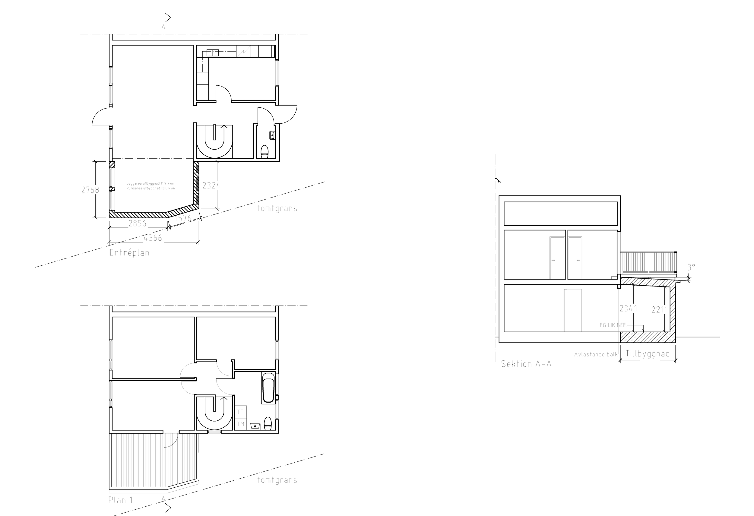
Utbyggnad av bostad

Uppdraget bestod av att utforma en utbyggnad av vardagsrumsdelen av ett radhus. Ovanpå utbyggnaden planerades också en stor balkong. Förutom skissförslag producerades även bygghandlingar och bygglovshandlingar.

Före

Efter

Föregående
Föregående

Terassvilla

Nästa
Nästa

Bostadsområde